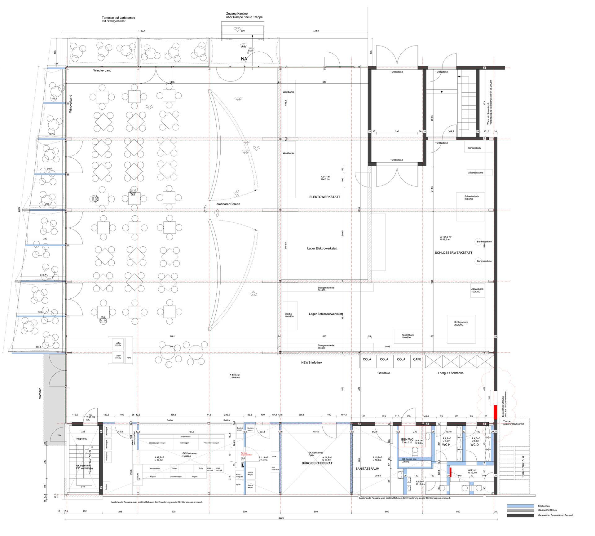
The buildings of Friedrich Sanner GmbH & Co. KG have been continuously constructed, expanded, and renovated on the company premises since 1894. The hall building on Schillerstrasse dates back to the 1960s and was formerly used as a production building (gross floor area approx. 1,800 m²). The structure of the hall will be retained, while the building envelope will be renovated and adapted to meet today's technical and energy standards. New sanitary facilities and a kitchen with a self-service counter will be installed to accommodate the change of use to a company canteen.
Die Gebäude der Friedrich Sanner GmbH & Co. KG wurden auf dem Firmengelände seit 1894 kontinuierlich errichtet, erweitert und umgebaut. Das Hallengebäude an der Schillerstrasse stammt aus den 60er Jahren und wurde früher als Produktionsgebäude genutzt (BGF ca. 1.800 m²). Die Konstruktion der Halle bleibt erhalten, die Gebäudehülle wird erneuert und an die heutigen technischen und energetischen Standards angepasst. Für die Nutzungsänderung in eine Firmenkantine werden neue Sanitärräume und eine Küche mit SB-Tresen eingebaut.











