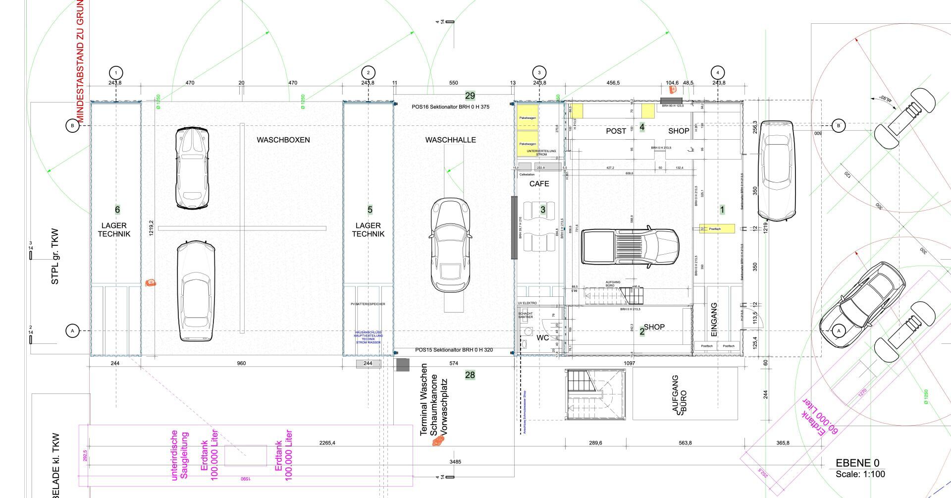
The gas station in Wyk on the island of Föhr is located in a new commercial area on the road to the harbor. The building comprises a shop with a two-story interior, offices, a wash hall, and self-service wash bays (gross floor area approx. 900 m²). We are using 28 used shipping containers of various sizes for the construction.
In addition to fuel pumps with conventional fuels, fast-charging stations for electric vehicles will be installed – the electricity for this will be generated by photovoltaics on the roof of the building and temporarily stored in power units. In the future, hydrogen will also be available for refueling.
The shop is heated and hot water for the washing areas is provided by heat pumps and thermal solar collectors. The washing water is treated and reused.
Die Tankstelle in Wyk auf der Insel Föhr liegt in einem neuen Gewerbegebiet an der Straße zum Hafen. Das Gebäude umfasst einen Shop mit zweigeschossigem Innenraum, Büros, Waschhalle und SB-Waschboxen (BGF ca. 900 m²). Für die Konstruktion verwenden wir 28 gebrauchte Seecontainer in unterschiedlichen Abmessungen.
Neben Zapfstellen mit herkömmlichen Kraftstoffen werden Schnellladesäulen für elektrische Antriebe installiert – der Strom dafür wird mit Hilfe von Photovoltaik auf dem Dach des Gebäudes gewonnen und in Powerunits zwischengespeichert. Zukünftig soll auch Wasserstoff vertankt werden.
Die Heizung des Shops und Warmwassererzeugung für die Waschbereiche erfolgt durch Wärmepumpen und thermische Solarkollektoren. Das Waschwasser wird aufbereitet und wieder verwendet.




























































